3층 생활공간 바닥난방 문의합니다.
페이지 정보
본문
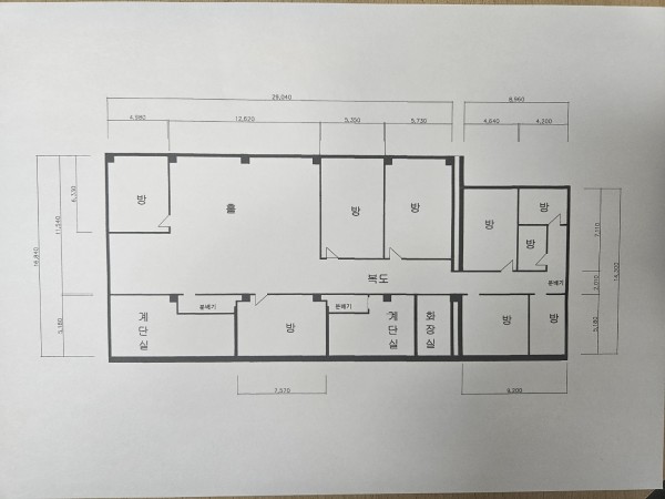
건물의 3층 공간에 바닥난방을 설치하려고 합니다.
여러 공간으로 구분되어 있고 넓어서 평면도를 같이 보내드립니다.
확인 후 견적해 주시면 됩니다.
그리고 이 곳은 도시가스 보일러 2대를 사용할 계획입니다.
빠른 답변 부탁드립니다.
- 이전글펜션에 이지난방 설치하고 싶습니다 25.08.05
- 다음글개인 캠핑카 25.07.31
댓글목록
이지난방님의 댓글
이지난방 작성일
안녕하세요.
이지난방입니다.
첨부해주신 평면도를 바탕으로 설치할 공간의 크기를 가늠하여 견적하였습니다.
기존 대형 가스보일러를 사용하실 것이므로 난방호스를 PERT호스로 설치하고 약 4평당 1분배로 계획하였습니다.
위 내용을 포함하여 상세한 답변과 견적서를 남겨주신 이메일로 보내드렸습니다.
더 자세한 설명이 필요하신 경우
010-3602-6186이나 edgwjd@naver.com 또는 고객센터로 연락주시면 자세한 상담을 진행하겠습니다.
감사합니다.






